- Главная
- О министерстве
- Новости, анонсы, мероприятия
- Новости
- Актуальные темы
МУГИСО предоставит 177 гектаров земли для реализации масштабного инвестиционного проекта на территории Серовского городского округа
-
8 сентября 2016
Актуальные темы
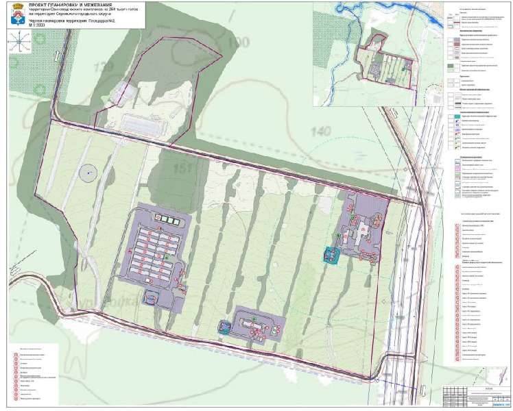
В соответствии с распоряжением Губернатора Свердловской области от 16 августа 2016 № 225-РГ Министерством по управлению государственным имуществом Свердловской области осуществляется предоставление 20 земельных участков акционерному обществу «Серовский завод ферросплавов», находящихся в государственной собственности Свердловской области, для реализации масштабного инвестиционного проекта «Строительство свиноводческого комплекса на 250 тысяч голов на территории Серовского городского округа». На данный момент договоры аренды заключены на 12 земельных участков, еще 8 – в стадии оформления.
Земельные участки, общей площадью 177 гектаров предоставляются акционерному обществу «Серовский завод ферросплавов» без проведения торгов в установленном земельным законодательством порядке на основании соответствия проекта критериям, указанным в пунктах 1 и 2 статьи 30 Закона Свердловской области от 07 июля 2004 года № 18-ОЗ «Об особенностях регулирования земельных отношений на территории Свердловской области».
Отметим, что реализация масштабного инвестиционного проекта «Строительство свиноводческого комплекса на 250 тысяч голов на территории Серовского городского округа» предусматривает создание 1232 дополнительных рабочих мест на территории Серовского городского округа.
Дата создания: 08.09.2016 16:12:28
Дата изменения: 08.09.2016 16:14:04
|
|
|













